全邸角住戸・内廊下設計が叶えるゆとりと寛ぎ。
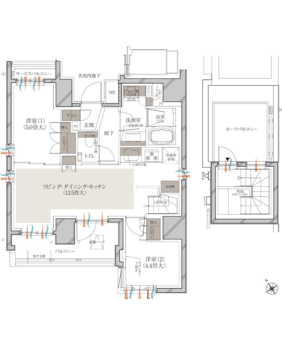
Floor Plan
独立性の高い全戸角住戸に内廊下設計、
ゆとりとプライバシー性に配慮した配棟。
各階平面図(2F〜7F)
各階平面図(8F〜11F)
-

10階内廊下完成予想CG
-

13階内廊下完成予想CG
Room Plan

参考写真
ウルトラファインバブル給湯器
● 5つのメリット
- 1. ピンク汚れの原因菌を66%減少
- 2. 水まわりの汚れを軽減
- 3. 排水管汚れの残存率減少
- 4. 落としずらい水垢を抑制
- 5.肌のうるおい角層水分量を30分後まで持続

ウルトラファインバブルとは
直径1マイクロメートル未満の微細な泡で、細かい隙間にある汚れを落とす作用があり、
その洗浄効果から幅広い分野で活用されています。
-

ウルトラファインバブル
数十nmから1μm未満
ウイルスや煙と同等サイズ。微細運動をしながら、水中に長期残存(数週間から数ヶ月)。色は透明。
-

マイクロバブル
1μmから100μm未満
スギ花粉や黄砂と同等サイズ。直径約30μmの気泡で、非常にゆっくりと上昇。色は白濁。
-

その他の泡
100μm以上
髪の毛の直径と同等サイズ。上昇速度が速い(直径1mmの気泡で約5~6m/分)。泡そのものを目視できる。
マイクロバブルバス
マイクロバブルバスは、お湯に繊細な泡を発生させ白濁のお湯を楽しむことができるシステムです。マイクロバブルとウルトラファインバブルが生み出すダブルの効果で、まるで温泉に入っているようなリラクゼーションと温泉上がりのような潤いをもたらします。

参考写真







